Overview

Reach The Bazaria, located in Sector 68, Gurugram, is a premium commercial project offering strategically planned SCO (Shop-Cum-Office) plots. Positioned right on the Southern Peripheral Road (SPR), it ensures excellent connectivity to major hubs like Golf Course Extension Road, NH-8, and the upcoming metro corridor. Developed by the reputed Reach Group, this project is surrounded by high-end residential communities, making it an ideal location for retail outlets, office spaces, showrooms, and startups. The gated complex comes with wide roads, ample parking, and modern infrastructure, ensuring a seamless business environment. With RERA approval in place, investors and buyers can expect complete transparency and security. Reach The Bazaria is designed as a future-ready commercial hub, promising high returns on investment in one of Gurgaon's fastest-developing sectors.

reach-the-bazaria
reach-the-bazaria

Highights

  • Offers flexible spaces suitable for retail outlets, offices, showrooms, cafes, and more, allowing businesses to customize according to their needs
  • Proximity to densely populated residential neighborhoods ensures significant footfall, enhancing business prospects
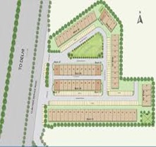
  • Features wide internal roads, ample parking spaces, landscaped areas, and robust utilities for a seamless operational experience
  • Includes a coffee shop, gardens, indoor and outdoor games areas, mini theater, clubhouse, security services, Wi-Fi, CCTV surveillance, and wheelchair accessibility
  • Located in a high-growth area, the project offers promising appreciation and rental returns, making it a smart addition to any investment portfolio
  • Developed by Reach Group, known for delivering premium real estate projects that combine innovation, quality, and sustainability

Exclusive Preview

Floor Plans

more projects

Enquire Now

Get expert guidance for your successful real estate journey.

Call

Whatsapp

Enquire Now